Download various house plans in dwg formats
Download various drawings which are made in autocad and available in dwg formats.
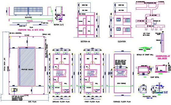
These drawings are useful for creating any house plans. The drawings comprise of first floor plan, ground floor plan, foundation detail, terrace floor plan, site plan, details of dwarf wall, compound wall and gate detail, sections, elevation, conservation of rain water.
To download the drawings, click on the following link cadbull.com

